Vejledning opmåling af nye net mål

Her viser vi, hvordan du måler korrekt op til et nyt net på et eksisterende mål.
Denne brugervejledning kan bruges til fodboldmål og udendørs håndboldmål.
Vis produkter

Her måles fra bagsiden af overliggeren til hvor netbøjlen bukker.

Her måles fra indvendig side af stolpen til der hvor netbøjlen er fastgjort på bundrammen.

Her måles det indvendige mål fra indvendig side af stolpe 1 til indvendig side af stolpe 2.

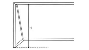
Her måles fra indvendig side af overligger ned til bunden af stolpe























